Host & Stay | Voyagers' View
Entire home in North Yorkshire, United Kingdom
The space
Located in the heart of Whitby’s old town, you’ll find stunning views from every room across the harbour and North York Moors National Park in the distance.The property has been beautifully renovated to a high standard to provide a quality experience with touches of luxury including Molton Brown toiletries and Tempur and Emma mattresses and pillows. The beds even have electric blankets to get extra snuggly in the winter.For when the sun isn’t so bright there are two flat screen TVs, both with Amazon Fire sticks to enable you to access your favourite channels and there are Sonos speakers for music streaming on each floor. You will also find board games and books, or you can just admire the view. With the addition of the fabulous independent shops of Church Street literally on the doorstep, there will always be plenty to do!
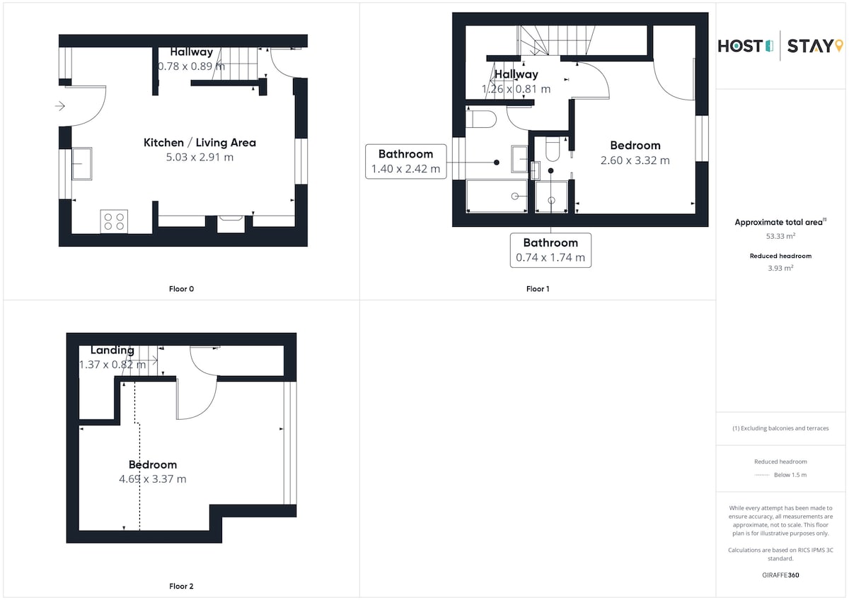
Upon entering the property, you’ll be welcomed into the light and airy living room. Perfect for socialising and relaxing, this space includes a comfy sofa and two matching chairs, an electric log burner, and a flat screen TV. Perfectly combining modern and traditional styles, it is ultra cosy and in perfect keeping with the nature of the cottage.
Sharing the living space is the kitchen which features a dishwasher, oven, hob, refrigerator, washer dryer, microwave, toaster, kettle, coffee machine, sodastream and cookware so you can make the most of your self-catering stay. There is also a dining table with four matching chairs.
Take the stairs up to the first floor and you’ll find the first bedroom and main bathroom. The bedroom boasts a comfortable king-size bed, storage space and an ensuite shower room offering overhead drench and handheld showers, WC and basin. With crisp white walls spanning the entire room, a tranquil and welcoming feel is created.
Clean and modern, the bathroom has a walk-in shower with the option of overhead drench and handheld showers, WC and basin.
The second bedroom, located on the second floor, also has a cosy feel and ample storage space. A king-size bed, wardrobe and bedside tables complete the space. This room also benefits from a flat screen TV.
Voyagers’ View has a fabulous, enclosed garden, unusually large for the old town, with beautiful views across the rooftops to the town centre. You’ll find a dining table and chairs, along with an additional separate seating area. This space is perfect for outdoor dining, a morning cuppa, playing garden games, or just relaxing in the sun. At night, the garden can be lit up to create a truly magical experience.
Guest access
Guests have access to the full property. Please note that there are four small flights of steps leading up to Voyagers' Rest (32 steps in total).The keys to Voyagers’ View are accessed via a key safe box, and full details will be provided prior to check-in.
Free long-stay parking is available nearby on a first come, first served basis. Pay & display parking is also available in Whitby town centre, costing £10.80 per 24 hours.
Up to two well-behaved dogs are welcome to stay at Voyagers’ View per reservation.
Bedrooms
Bedroom 1
1 king bed
Bedroom 2
1 king bed
Amenities
- Hair dryer
- Cleaning products
- Shampoo
- Conditioner
- Body soap
- Hot water
- Shower gel
- Wifi
- Dedicated workspace
- Kitchen
- Free on-street parking
- Pets allowed
4.9 · 29 Reviews
1 week ago
This beautiful cottage in Whitby was everything we hoped for and more. The location couldn’t be better. Peaceful, picturesque, and just a short walk from everything. The cottage itself was spotlessly clean and beautifully presented. You can tell a lot of care goes into keeping it welcoming for guests. Nice touches like the welcome hamper. Beds were very comfortable and the showers lovely. We would happily stay again and highly recommend it!
2 months ago
As annual holidayers to Whitby , this is the best Airbnb we have stayed in. The house was beautiful, with amazing attention to detail and high quality finish and perfect for dogs as an added bonus. It is 2 minutes into the old town with spectacular views . A lovely welcome hamper was an extra special touch . We will definitely stay again thank you ☺️
2 months ago
Stylish and very high quality fixtures, fittings, bed linen, kitchenware etc. We used the patio garden every evening which is beautiful for sunset and had none of the gull-related issues we had read about. Beautifully decorated and spotlessly clean. Location is great - lovely shops and cafés just on the local street but no traffic as the road is a dead end. There were just 2 of us so we didn't use the upper bedroom. The downstairs was a nice size for us but it would have been cramped we had been 4 adults. I'm not sure there is anything more the host could have done to have made our stay any better.
2 months ago
Would highly recommend this Air BnB - the house was absolutely gorgeous, and spotlessly clean! The beds were also so comfy! The hosts had really gone the extra mile with every little detail thought of - a welcome basket of local goodies, a really helpful welcome guide, molton brown toiletries, and a good selection of board games (to name a few!) We would definitely stay here again.
3 months ago
This cottage was such a joy to stay in! You can tell immediately that it’s the owners’ (Rupert and Chloe) second home—it has a warmth and personality that so many rentals lack. Unlike the “money-making units” we’ve come across in the past, this space is filled with thoughtful details, from the Whitby-themed mugs to the well-chosen artwork, indoor and outdoor games, and whimsical touches throughout. The overall feel is peaceful, welcoming, and just right for a true getaway. The bathrooms, with their charming hummingbird tiles, made us smile every time we walked in. And the level of care in stocking the home is truly unmatched—after ten years of Airbnb stays, we’ve never had one so thoroughly equipped. If you think you might need it, chances are you’ll find it here (and probably in spades!). There was even a wonderful gift basket waiting for us in the kitchen, which our daughters just couldn't get over! We left feeling refreshed and grateful for such a lovely stay. Highly recommend.
Location
Neighbourhood highlights
House Rules
- Check-in after 16:00
- Checkout before 10:00
- Self check-in with lockbox
- 4 guests maximum
- Pets allowed
- No parties or events
- No smoking
Safety & Property
- Not suitable for infants (under 2 years)
- Carbon monoxide alarm installed
- Smoke alarm installed

