Host & Stay | Castle View
Entire home in North Yorkshire, United Kingdom
The space
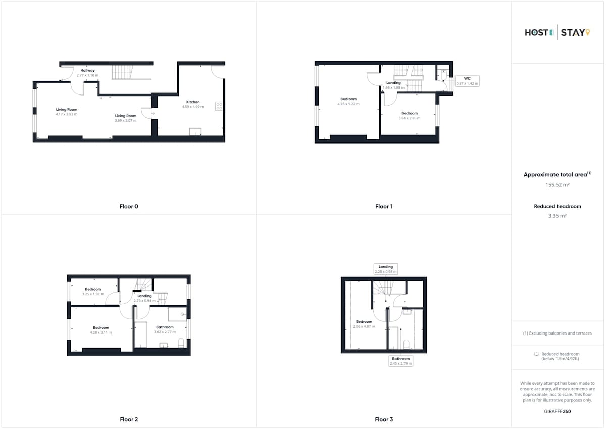
You’ll find stylish interiors throughout Castle View. Refurbished to a high standard, you can expect high quality furniture and beautiful styling. The property boasts an open plan living and dining room, fully equipped kitchen, five bedrooms, two bathrooms and a separate WC.Modern and spacious, the open plan living and dining room is perfect for socialising with your loved ones. The living area includes a blue L-shaped chaise sofa, a second grey sofa and a large flat screen TV. The ideal spot to retreat to after a fun-filled day exploring Scarborough, the living area is a comfortable space to unwind.
The dining area features a large dining table and ten dining chairs so there is ample space for your whole party to enjoy meals together.
Fully equipped for self-catering stays, the large kitchen has everything you could need to prepare home cooked meals during your stay. Appliances include an oven, hob, toaster, kettle, microwave, fridge freezer, coffee maker and dishwasher. The kitchen also features a breakfast bar with three bar stools.
Take the stairs up to the first floor and you’ll find two bedrooms and a WC. The master bedroom boasts a Super King bed and the second bedroom benefits from a King size bed.
On the second floor, you’ll find a further two bedrooms and a family bathroom. The third bedroom is a double and the fourth bedroom has single bunk beds. Spacious and stylish, the family bathroom boasts a bathtub, large walk in shower, WC and vanity unit.
The final bedroom and bathroom can be found on the third floor. With sloped ceilings, both rooms have a cosy feel. The final bedroom boasts a double bed and the bathroom has a roll top bathtub with an overhead shower, WC and a basin.
Every bed in Castle View benefits from plush bedding and premium bed linens to ensure you have a comfortable night’s sleep. Every care has been taken to ensure each bedroom has a tranquil feel with relaxing colour schemes and lovely soft furnishings.
Host & Stay are committed to our owners that their homes are protected during guest bookings. For this reason, we require all our guests to transfer a Damage Deposit (refundable, subject to an administration charge) or, to purchase an Accidental Damage Waiver which will cover you for up to £500.00 of accidental damage during your stay.
Guest access
Guests have access to the full property. The keys to the property are accessed via a secure key safe and full details will be provided shortly before your arrival date.On street parking is available on a first come, first served basis. There is also a large pay and display car park close by to the property.
Bedrooms
Bedroom 1
1 king bed
Bedroom 2
1 double bed
Bedroom 3
1 king bed
Bedroom 4
1 bunk bed
Bedroom 5
1 king bed
Amenities
- Bath
- Shampoo
- Hot water
- Washing machine
- Essentials
- Hangers
- TV
- Wifi
- Dedicated workspace
- Kitchen
- Free on-street parking
Carbon monoxide alarm
4.14 · 7 Reviews
8 months ago
We have had a lovely family get away at castle view. The location was perfect less than a 10 minute walk to the beach and in the town centre. We had everything we needed and the house is huge! plenty of space for a larger group of people. Would definitely stay again
1 year ago
the house was lovely the owners(not host and stay) had obviously spent money with the renovation etc. but there was a" water leak" beneath the kitchen floor and when you walk on it water comes up between the joints and it made the kitchen and downstairs rooms stink. The boards are sodden, delaminating and crumbling in places.we had to keep the doors closed and wear shoes if we went into the kitchen to avoid wet socks. host and stay promised to send someone, no one came, they just aren't interested,.We paid over£1000 for a house with an unsanitary kitchen. owners should find another management company as whatevers wrong is damaging their property. Host and Stay should take responsibility. Airbnb resolution process etc is confusing and still ongoing
Location
Neighbourhood highlights
House Rules
- Check-in after 16:00
- Checkout before 10:00
- Self check-in with lockbox
- 10 guests maximum
- No pets
- No parties or events
- No smoking
Safety & Property
- No carbon monoxide alarm
- Smoke alarm installed

