Host & Stay | The Snug
Entire home in Hunmanby, United Kingdom
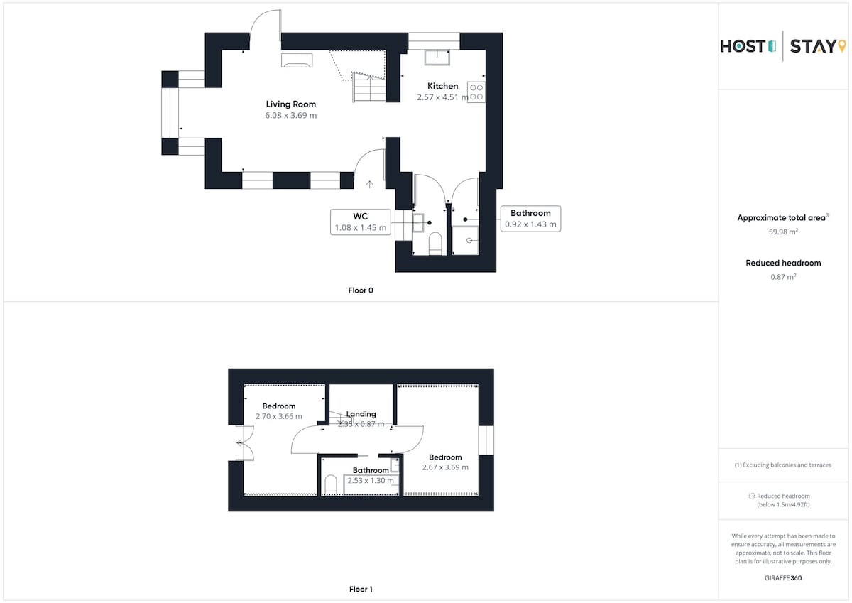
The space
The Snug has been furnished and designed to a high standard. You can expect a Victorian seaside flavour with a cosy cottage feel throughout this barn conversion. Sleeping up to four guests, the property boasts a living and dining area, fully equipped kitchen, two bedrooms, two bathrooms and an enclosed coastal themed courtyard.Upon entering the property, you’ll be welcomed into the living and dining area. Whilst transformed into a modern and sophisticated space, you’ll still find traditional features such as the exposed beams. A great spot to unwind, you can relax on the comfy sofas and turn on the flat screen TV to keep up with your favourite shows. Children's toys and games available in the living room for guest use.
Also sharing the living space is the dining area which includes a round dining table and four chairs.
The kitchen in The Snug is fully equipped for self-catering stays. Amenities include an oven, hob, microwave, kettle, toaster and fridge freezer so you can prepare home cooked meals during your stay. There is also a dishwasher and washing machine for your convenience.
The first bathroom is located just off the kitchen. Ultra-modern and clean, this space features a walk-in shower with the WC and basin located directly next door.
Take the stairs up to the first floor and you’ll find the bedrooms. Both bedrooms are traditionally decorated and styled. You’ll find premium bedding and plush soft furnishings to ensure you have a great night’s sleep. The master bedroom boasts a comfortable double bed, and the second bedroom is a twin.
Also on the first floor is the second bathroom. Here you can enjoy a relaxing soak in the bathtub.
Guest access
Guests have access to the full property. Access to The Snug is via a digital door lock, and full details will be provided prior to check in.Private on-site parking is available for one vehicle.
Bedrooms
Bedroom 1
1 double bed
Bedroom 2
2 single beds
Amenities
- Bath
- Hairdryer
- Hot water
- Washing machine
- Essentials
- Hangers
- Extra pillows and blankets
- TV
- Wifi
- Dedicated workspace
- Kitchen
- Free parking on premises
4.85 · 13 Reviews
4 months ago
Lovely stay at The Snug, Hunmanby. Ideal property for up to 4 people with everything & more you could need in a property for a 4-day air B N B stay. Gated parking great. Kids appreciated games, fans for the bedroom, location close to loads of lovely beaches. highly recommended.
5 months ago
Centrally located with a variety of amenities with nice beaches nearby. Secure off-road parking was essential in this busy village although, the snug is the furthest property away from the allocated bay. So expect a walk with your luggage. Once inside the property was well equipped (almost too much for its size) which made it feel cluttered in some areas. Nicely decorated throughout with a comfy bed and a quirky nautical theme. The fire is not real but electric. Earlier check in is available at an extra cost. Access to the property is via an electronic door handle not a lock box & key. If you are arriving in the dark you may require a torch to see the numbers as the keypad is quite faint. If you don’t like the smell then the chain smoking neighbour may spoil your stay. Overall we had a relaxing stay visiting family nearby.
6 months ago
The accommodation was really good & nice touches with soap & hand lotion provided in downstairs toilet, shampoo & lovely scented body wash in bathroom. We enjoyed our stay very much & would highly recommend. Thank you for a lovely couple of nights away for weekend.
6 months ago
The Snug was exactly as described … immaculately clean, kitchen well equipped, beautiful linen and towels. Excellent communication from the outset from the host. Fantastic location with gated secure parking. The Snug was cosy , warm with quality furniture and equipment. Easy to get to Filey, Scarborough and the village of Humanby itself has so much to offer with pubs, a CoOP in close walking distance. Definitely worth a visit and will look to visit again.
7 months ago
Lovely, artistic cottage in a gated community in centre of Hunmanby. Beautifully decorated throughout and lots of interesting artwork. Comfortable, well stocked with kitchen essentials. Easy reach of coastal areas by car or bus which runs through the village. Several village pubs, coop around the corner and other shops. The Piebald Inn was a short walk away, 52 varieties of pie. Lovely, quiet and comfortable stay. Would stay again and recommend.
Location
Neighbourhood highlights
House Rules
- Check-in after 16:00
- Checkout before 10:00
- Self check-in with smart lock
- 4 guests maximum
- No pets
- No parties or events
- No smoking
Safety & Property
- Not suitable for infants (under 2 years)
- Carbon monoxide alarm installed
- Smoke alarm installed

