Host & Stay | Holt Cottage
Entire home in Old Byland, United Kingdom
The space
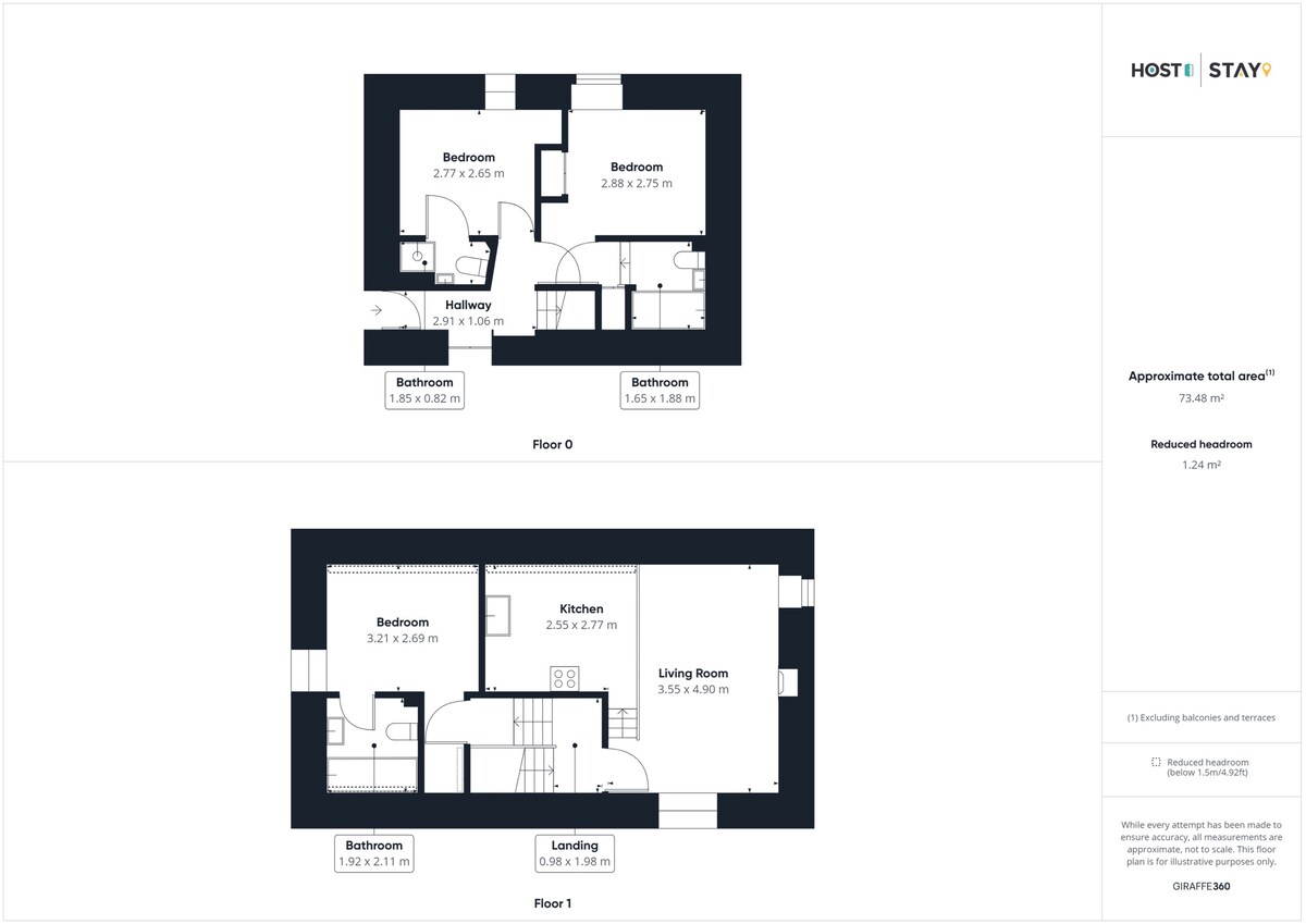
Holt Cottage has a spacious open-plan living, kitchen and dining area. Featuring a neutral colour scheme and large windows, there is a tranquil and welcoming feel. The living area includes a sofa, two armchairs and a TV so it’s the perfect place to unwind during your stay. For autumn and winter, the cottage is cosy as it is heated by a Biomass boiler.Split-level in design, the kitchen and dining area can be found up a few stairs. Fully equipped, the kitchen boasts a dishwasher, washing machine, oven, hob, kettle, microwave, toaster and refrigerator so you’ll have everything you could need for a self-catering break. Ideal for family meals, the dining area has a large wooden dining table and matching padded chairs.
The property boasts three bedrooms. The master bedroom includes a double bed and an ensuite shower room with a WC and wash basin. The second and third bedrooms are twins, and also boast their own ensuite bathrooms, both of which with bathtubs and overhead showers.Host & Stay are committed to our owners
Guest access
Guests have access to the full property. The keys to the property are accessed via a secure key safe and full details will be provided shortly before your arrival date.Ample on-site parking is available.
Cots & high chairs will need to be requested prior to your arrival.
Bedrooms
Bedroom 1
1 double bed
Bedroom 2
2 single beds
Bedroom 3
2 single beds
Amenities
- Bath
- Hairdryer
- Shampoo
- Hot water
- Washing machine
- Tumble dryer
- Essentials
- Wifi
- Dedicated workspace
- Kitchen
- Free residential garage on premises
- Pets allowed
4 · 4 Reviews
1 year ago
The area was lovely and the hosts great. What was disappointing for us was as we have 2 dogs, and had booked a dog friendly accommodation, there was no where we could open a door and let the dogs out, so if they needed to go out at night we had to put a lead on and take them out. Other points that disappointed us. No shelving in the kitchen for storage, no trays to carry cups etc, only 1 dishwasher tablet left for a 3 day stay. Lights all around the accommodation were not working, A light in one of the bedrooms was loose. Bathroom door would not shut, no door mats to prevent mud coming into the property. Nothing left for the dogs at all including bowls, towels to wipe them. Having run our own dog friendly accommodation we expected covers to be available to put on furniture to ensure the dogs kept any seating clean if they happened to get on the furniture (We brought out own). The Accommodation was quiet and the area lovely. Would I stay in that particular accom again... No
Location
Neighbourhood highlights
House Rules
- Check-in after 16:00
- Checkout before 10:00
- Self check-in with lockbox
- 6 guests maximum
- Pets allowed
- No parties or events
- No smoking
-
Additional rules
Host & Stay are committed to our owners that their homes are protected during bookings. For this reason, we require all of our guests to transfer a £250.00 Damage Deposit (subject to a £10.00 administration charge) or, to purchase an Accidental Damage Waiver for £25.00 which will cover you for up to £500.00 of accidental damage during your stay.
Safety & Property
- Carbon monoxide alarm installed
- Smoke alarm installed

