Host & Stay | Broadway
Entire home in Chadderton, United Kingdom
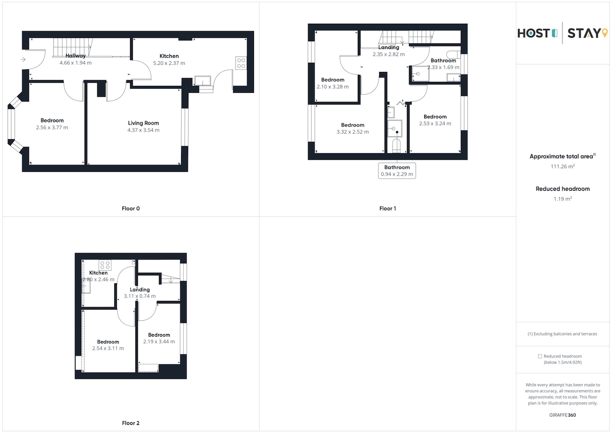
8 guests · 6 bedrooms · 6 beds · 2 bathrooms
Broadway is a spacious six-bedroom, two-bathroom townhouse sleeping up to eight guests. Within walking distance of Chadderton’s amenities and transport links, it's ideal for enjoying the local area and exploring the entirety of Greater Manchester. Perfect for both business and leisure, Broadway offers a comfortable base with two fully equipped kitchens and homely living space for relaxing.
Located on the ground floor of the house, the living room is fitted with two leather sofas, while the space also offers a flatscreen TV with access to streaming apps.
Two kitchens can be found at Broadway – one on the ground floor and one on the second floor. Each kitchen is fully fitted with an oven, microwave, kettle, toaster and fridge, freezer. A washing machine is also provided at the property.
Each bedroom at Broadway has its own wardrobe, chest of drawers and bedside tables. Situated on the ground floor, bedroom one is fitted with a double bed sleeping two guests. With a large bay window, light floods in into the space during the daytime hours, creating a welcoming space to relax or work.
On the first floor, you’ll find two single bedrooms and one double, while on the second floor there are a further three single rooms.
Two bathrooms can be found inside the property, both on the first floor. With walk-in showers, wash basins and WCs, both spaces are well equipped for self-catering stays in Greater Manchester.
Free on-street parking is available nearby on a first come, first served. No permit is required.
The space
This terraced house is suitable for business breaks and family-friendly retreats, and boasts a living room, two kitchens, six bedrooms, and two bathrooms.Located on the ground floor of the house, the living room is fitted with two leather sofas, while the space also offers a flatscreen TV with access to streaming apps.
Two kitchens can be found at Broadway – one on the ground floor and one on the second floor. Each kitchen is fully fitted with an oven, microwave, kettle, toaster and fridge, freezer. A washing machine is also provided at the property.
Each bedroom at Broadway has its own wardrobe, chest of drawers and bedside tables. Situated on the ground floor, bedroom one is fitted with a double bed sleeping two guests. With a large bay window, light floods in into the space during the daytime hours, creating a welcoming space to relax or work.
On the first floor, you’ll find two single bedrooms and one double, while on the second floor there are a further three single rooms.
Two bathrooms can be found inside the property, both on the first floor. With walk-in showers, wash basins and WCs, both spaces are well equipped for self-catering stays in Greater Manchester.
Guest access
Guests have access to the full property. The keys to Broadway are accessed via a key safe box, and full details will be provided prior to check in.Free on-street parking is available nearby on a first come, first served. No permit is required.
Bedrooms
Bedroom 1
1 single bed
Bedroom 2
1 single bed
Bedroom 3
1 double bed
Bedroom 4
1 single bed
Bedroom 5
1 double bed
Bedroom 6
1 single bed
Amenities
- Shampoo
- Hot water
- Washing machine
- Essentials
- Hangers
- Bed linen
- Iron
- TV
- Wifi
- Dedicated workspace
- Kitchen
- Free on-street parking
This property has no reviews yet.
Location
Neighbourhood highlights
House Rules
- Check-in after 16:00
- Checkout before 10:00
- Self check-in with lockbox
- 8 guests maximum
- No pets
- No parties or events
- No smoking
Safety & Property
- Carbon monoxide alarm installed
- Smoke alarm installed

