Stylish Apartment in Central Georgian Quarter
Entire rental unit in Merseyside, United Kingdom
This apartment is perfect for a family get-together and quiet escape in a beautiful, peaceful location.
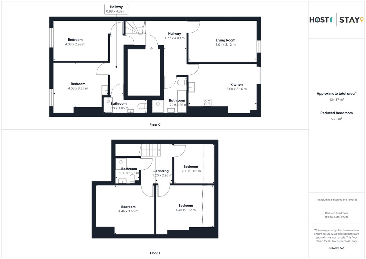
Separated between 2 floors, enjoy 5-beautiful bedrooms, a fully equipped modern Kitchen and dining area, and a comfortable Living Area to rest and recoup.
*We kindly ask you to make sure you read and understand our house rules before booking your stay*
The space
Apartment Sleeps 14:Main Floor
Living room:
• Fitted with a large Smart TV that has aerial channels
• Two Double Sofa beds
Kitchen & dining room:
• Equipped with Microwave, Kettle, Espresso Coffee Machine, Oven, and much more.
Bedroom 1:
• Fitted with a King Bed for 2-guests
• Modern Kitchenette with a Nespresso Coffee Machine
• Decorated with a Desk which can be utilised for work or as a Dressing Table
• Fitted with a large Smart TV
Bedroom 2:
• Fitted with a King Bed for 2-guests
• Fitted with a Smart TV
Bathroom 1:
• Fitted with a Standard Bath, Shower, Toilet and Basin.
Bathroom 2:
• Fitted with a Standard Shower, Toilet and Basin.
Attic Floor:
• 2 Bedrooms fitted with a King Bed for 2-guests each
• 1 Bedroom fitted with a Double Bed for 2 guests.
• Each bedroom is fitted with a Smart TV
Bathroom 3:
• Fitted with a Standard Shower, Toilet and Basin.
**Baby chair and baby cot available on request**
Situated on the top floor of a Georgian-Style Home - the beautiful view from the top is worth a few steps to climb!
**Please note that a baby cot & high chair are available on request. Please send the request upon booking to ensure we can prepare one for your stay. A minimum of 48 hours' notice should be given**
Guest access
Guests have complete private access to the whole apartment, with the communal hallways being a shared area with other residents and guests within the building.Our apartments also come with a self-check-in service which is accessed from the communal space.
Please note that there are 4 flights of stairs up to the apartment.
Other things to note
The apartment is located within a residential building, as such this is not suitable for parties, events or celebrations and we have a strict policy against loud music or noise. We have a noise sensor in the apartment that measures decibels and alerts us when the noise is above acceptable threshold.We are unable to host groups of guests under 25 at this property.
The apartment is located on the 2nd floor (up 4 flights of stairs).
The check in time is 3pm & check out 10am - Please adhere to these times unless otherwise agreed. An unauthorised late check out will incur a charge.
We provide bedding for all beds needed and a bath towel per guest. Bathrooms will be equipped with X1 hand towel and X1 bath mat.
Smoking is strictly prohibited and will incur a deep cleaning charge upon check out. It also strictly prohibited to smoke by the main door outside, please use back door.
Kindly note that we cannot accept parcels delivered to the apartment’s address and cannot be held responsible for any lost/damaged items. If you do require a parcel to be delivered during your stay, please contact us for our office address.
Lastly, please note, during exceptionally busy periods we may need to gain access to the property to complete maintenance works. This is to keep the property in good order for your stay. We always give 24 hours notice of this unless there is an emergency which needs addressing sooner.
Bedrooms
Bedroom 1
1 king bed
Bedroom 2
1 king bed
Bedroom 3
1 king bed
Bedroom 4
1 double bed
Living room
2 sofa beds
Bedroom 5
1 king bed
Amenities
- Bath
- Hairdryer
- Shampoo
- Hot water
- Essentials
- Hangers
- Bed linen
- Washing machine
- TV
- Wifi
- Dedicated workspace
- Kitchen
4.81 · 154 Reviews
2 months ago
The apartment was perfect for myself and my family to stay in for two nights whilst we explored Liverpool. The Georgian Quarter is a very nice part of town with great architecture. Good local bars and restaurants and walking distance to both of the city’s cathedrals. You must visit the Metropolitan Cathedral, it is breathtaking inside. The city centre is walkable. The apartment itself was clean and spacious and for a place that can sleep up to 14 people, it didn’t have too much of a party flat vibe ie the decor wasn’t damaged, it was clean and the furniture was decent quality including comfy beds. Yes there are a fair few stairs to climb to get in but it’s worth it.
2 months ago
I spent my birthday in the apartment and everything worked out wonderfully. The rooms were clean, we had enough space and the check-in went smoothly. The only criticism is that the apartment is a little worn out in parts. However, nothing that cannot be fixed quickly, so only a minor defect.
Location
Neighbourhood highlights
House Rules
- Check-in after 15:00
- Checkout before 10:00
- Self check-in with lockbox
- 14 guests maximum
- No pets
- No parties or events
- No smoking
-
Additional rules
•Stag, Hen or Party Groups are not allowed in our Apartments. Please be aware you may be asked to leave if found in violation of this rule with no refund given. • Key collection is from 15:00 unless the early collection is arranged before arrival. This will be subject to availability and charged at £20 per hour. This also applies to dropping the keys back later than the check-out time of 10:00. • We are a non-smoking building. £250 will be charged if any signs of smoking are found following your stay within the flat. • Please use the designated smoking area located at the back of the building and do not smoke in front of the building - Guests found doing so will be subject to a £100 charge. • Unfortunately reservations with large groups under the age of 25 will not be accepted.
Safety & Property
- Carbon monoxide alarm installed
- Smoke alarm installed
- Must climb stairs
Property Manager Terms
Share This Property
Click on one of the buttons below to share this property:
Amenities
- Bath
- Hairdryer
- Shampoo
- Hot water
- Washing machine
- Essentials
- Hangers
- Bed linen
- Iron
- TV
- Cot
- Travel cot
- High chair
- Heating
- Smoke alarm
- Carbon monoxide alarm
- Fire extinguisher
- First aid kit
- Wifi
- Dedicated workspace
- Kitchen
- Fridge
- Microwave
- Cooking basics
- Crockery and cutlery
- Dishwasher
- Cooker
- Oven
- Coffee maker
- Long-term stays allowed
- Self check-in
- Lockbox
Air conditioningPrivate entrance
4.81 · 154 Reviews
Martina
10 years on Airbnb4 weeks ago
Convenient location for exploring the city; a cosy home for our group. Received numerous messages from the host, often repetitive. Recommended.
James
10 years on Airbnb1 month ago
A nice place to stay, but quite expensive and further from city centre than ideal (albeit close to both cathedrals). Host & Stay sent a relentless stream of messages which drove me to distraction.
Nicola
10 years on Airbnb2 months ago
The apartment was perfect for myself and my family to stay in for two nights whilst we explored Liverpool. The Georgian Quarter is a very nice part of town with great architecture. Good local bars and restaurants and walking distance to both of the city’s cathedrals. You must visit the Metropolitan Cathedral, it is breathtaking inside. The city centre is walkable. The apartment itself was clean and spacious and for a place that can sleep up to 14 people, it didn’t have too much of a party flat vibe ie the decor wasn’t damaged, it was clean and the furniture was decent quality including comfy beds. Yes there are a fair few stairs to climb to get in but it’s worth it.
Danielle
8 years on Airbnb2 months ago
I spent my birthday in the apartment and everything worked out wonderfully. The rooms were clean, we had enough space and the check-in went smoothly. The only criticism is that the apartment is a little worn out in parts. However, nothing that cannot be fixed quickly, so only a minor defect.
Beth
9 months on Airbnb3 months ago
Great location for staying in Liverpool! Easy walk up with bags from the train station and easy to get anywhere in town by foot! Lovely quiet location fully undisturbed!
Helena
10 years on Airbnb4 months ago
Good stay. Thanks
Lucy
6 years on Airbnb5 months ago
We have just returned from a great stay in Falkner Street. The apartment was lovely, nicely decorated, well equipped and very clean. It is in a superb location. Hopefully we will return.
Andrei
11 years on Airbnb6 months ago
everything went smoothly. the place is as described and very well organized. definitely will stay there when I come back to Liverpool
Karen
11 years on Airbnb6 months ago
Fantastic location and lovely apartment. Would definitely recommend
Shane
9 years on Airbnb6 months ago
Excellent location. 10 mins walk to the centre and 20 mins to Pier Head. Road is peaceful. We parked outside to unload our bags and then moved the car to ParkBee Liverpool Central Village which seemed good value and could leave overnight. Rooms are a good size with comfortable beds. Well equipped kitchen. Nice and warm. We would definitely stay again if in Liverpool.
Track
3 years on Airbnb7 months ago
A great place to stay and within walking distance to Hope Street restaurants and bars. In the instructions need to make it clear key collection and apartment entrance is from Blackburn Place The main door in Falkner Street is not in use.
Melissa
7 years on Airbnb8 months ago
Fabulous apartment! A group of us stayed here for a friends wedding and it was just what we wanted. It has local restaurants/pubs, quiet location, and walkable distance to centre. Charlie from Host & Stay was very responsive and helped with any queries.
Julie
5 years on Airbnb10 months ago
Fabulous stay, the house was very clean and spacious. Great beds and all 5 of us enjoyed our sleep. House had everything we could have wanted for our stay and the distance to all amenities and big attractions was super. Local pubs and restaurants were great too and very friendly. Highly recommended.
Sarah
10 years on Airbnb11 months ago
Overall, we found this to be a great apartment for our stay with family. The location is lovely, a nice area and quiet. Had lovely restaurants within a couple of minutes walk. The host gave detailed instructions on everything and we found the property easily and felt very safe and secure inside. The multiple bedrooms are spacious and very comfortable and the kitchen had plenty of amenities. 3 bathrooms were ideal for our group. Everywhere was decorated nicely and was cleaned to a good standard - bedding etc was clean & fresh - however I think a deep clean would be beneficial in general but completely understand this isn’t easy with a quick turnaround. Parking on the street would be such a good idea for this property! Overall, a lovely stay - thank you 😊
James
10 years on Airbnb11 months ago
Really lovely spacious place. It would have been nice if able to be more flexible about checking in time.
Heather
8 years on Airbnb1 year ago
Great place to stay that had loads going for it. close enough to walk everywhere. would defo stay her again
Alex
11 years on Airbnb1 year ago
Great, well appointed apartment in a lovely location.
Paris
6 years on Airbnb1 year ago
Brilliant location, surrounded by excellent local cafes and pubs. Also well within short walking distance of cultural attractions and nearby the hop on/hop off bus stop. The 5 bedrooms were essential for our group - for 6 people, the common areas were a bit of a tight squeeze - but for the location I would absolutely recommend this property to other large groups. The property was climate controlled very well and we all slept great.
David
7 years on Airbnb1 year ago
Great few days in a lovely apartment. Great location as well.
Saoirse
11 years on Airbnb1 year ago
Beautiful bright accommodation in a great area. Responsive hosts and lively bedrooms. Very comfortable.
Emilia
7 years on Airbnb1 year ago
We stayed for two nights to celebrate our son’s 16th birthday. There were 6 of us; 2 adults and 4 teenagers. The place looks better than the pictures. The place is large enough so everyone can have a bit of privacy. Lots of bathrooms. Each bedroom is spacious with a very comfy king bed with soft clean linen and decent pillows. There is a large Smart TV in each room. The kitchen is very well fitted with plenty of fabulously clean glasses, cups, plates and cutlery. The place was very warm throughout with constant hot water (a must for me). The WiFi was excellent. Great location; about a 10min walk into Liverpool centre. There are a lot of steps to the apartment which is to be considered if anyone in the party has mobility issues. It wast an issue for us. Well worth the price. Thank you!
Mhairi
8 years on Airbnb1 year ago
We had a great time staying at Dale's place. Beautiful apartment with everything you need in it. The location was perfect for what we needed to get to. The only downside was parking. It wasn't mentioned on the listing and we struggled to find somewhere reasonably priced close by. So make sure you check out parking if you're staying - or maybe parking permits could be included? The apartment is on the top floor with 6 flights of stairs, again this wasn't mentioned and a couple of our party struggled due to knee problems. Overall we had the best time and would definitely stay again and recommend to friends and family.
Louise
9 years on Airbnb1 year ago
Brilliant location 10minutes to centre. House is amazing clean and spacious! we had a lovely stay. The pub at the end of the road is nice!
Zana
9 years on Airbnb1 year ago
A fantastic stay, everything was exactly as described and it was perfect for our group.
Jesper
9 years on Airbnb1 year ago
All in all, an okay experience. However, I didn't think they were so collaborative. But unfortunately, you often experience this when there are companies that rent homes. They have a firm company policy and they don't shy away from it. In addition, you'll be charged some crazy fees (in addition to the rent). We arrived early in Liverpool and we were only able to get into the apartment at 15.00. We asked if it was not possible to get in with our luggage as soon as their cleaning team was done. They promised to report back, we never heard from them. The check-in was a bit of a hassle, as you couldn't get into the apartment from the address that we had been told. We were going to a different address. We found it in the end, but not easy when there is no house number on the door. We travel to Liverpool 4-6 times each year and I don't think we will book an apartment through this company again. Then at least they need to be somewhat more accommodating and have a higher level of service.
Nicky
8 years on Airbnb1 year ago
Great place and location - perfect for exploring Liverpool and its attractions. Accommodation was clean and nicely decorated and suited our needs well. Only gripe is being charged a £15 admin fee to refund the security deposit.
Christine
10 years on Airbnb1 year ago
Good location within the Georgian quarter. Easy reach of Albert Dock and other amenities. The apartment is up a number of stairs which is described in the listing which has fine for us but something to bear in mind if someone has mobility issues. The apartment was tastefully furnished and had everything you need and was immaculate.
Caitlin
10 years on Airbnb1 year ago
Spacious, good location and everything was as advertised. Would recommend
Amy
4 years on Airbnb1 year ago
Amazing stay here in Liverpool. Everything was amazing about the property & it was perfect for our group! It wasn’t far to concert square in a taxi! Great place to stay
Jemma
10 years on Airbnb2 years ago
Amazing location, lovely apartment, lots of rules but other than that would recommend
Serge
3 years on Airbnb2 years ago
convenient for us who were going to visit our son at the nearby university and quiet the city center and restaurants are very close everything can be done on foot the accommodation met our expectations (12 people)
Kate
3 years on Airbnb2 years ago
It was a lovely flat,spaceous and clean and close to city centre.We would definately stay again. The only issue we had was finding the entrance, which is the back door (no 13) front door is no 20. It says on the map its right next door to the Blackburne Arms but it's not, it's a bit further down.
Berta
10 years on Airbnb2 years ago
Everything was great. We would definitely stay at this apartment again for sure.
Chizzarra
7 years on Airbnb2 years ago
Great location. Lovely and spacious for our family get together!
Miles
12 years on Airbnb2 years ago
A good place to stay for a large group
Gavin
7 years on Airbnb2 years ago
Great digs for the weekend, close to city centre, pubs and restraunts. Thanks
Jacqueline
5 years on Airbnb2 years ago
Excellent accommodation for our group of 6, including two children, with room to spare. Well appointed and equipped, all as described and as per the photos. Safe, quiet, comfortable, elegant. It is on the top two floors of a four storey building, plus stairs from the entrance to the entry door. So if you have heavy bags or mobility issues, you might struggle. No parking included with the property but paid parking in the street or in a nearby carpark, or free parking a few streets away. Host responsive with details when asked. We stayed in summer and it was light early in the mornings. Better block-out curtains would be a useful addition to an otherwise excellent property.
Nici
11 years on Airbnb2 years ago
we loved the apartment as it was roomy and every bedroom was lovely and had a double bed, which was ideal, as we travelled with 3 other couples. The posting does tell you wrong address (faulkner street) but you get given the correct one once you book, so it's not too much of a problem. Gates and doors are a bit fiddly to get into the building but it feels very secure when you're in there. Plenty of room for 9 of us and well decorated and clean. The stairs are very steep for the upper 3 bedrooms, so , if you have mobility problems, they would be tricky to access. It's a 20min walk to the centre but a nice walk. Its uphill on the way back but there's always plenty of taxis to get there if you don't fancy walking it . There's a cracking gastro pub just at the top of the road and round the corner. Food was really good in there. Lots of other bars and restaurants close by if you don't want to go into centre of liverpool. we had a fantastic time and would definitely stay here again!
Hayley
9 years on Airbnb2 years ago
Hard to find but good apartment
Steven
5 years on Airbnb2 years ago
We were in Liverpool to celebrate our daughter's graduation. The flat was in the perfect location and we had very little walking to do. The rooms in the flat were perfect for our family group of varying ages. Our hosts described everything we needed to us accuratly and we had no reason to call them over anything. Thanks!
Sophie
4 years on Airbnb2 years ago
Fantastic place to stay. There were 9 of us and plenty of space in this apartment. Found it a little tricky to get to initially, but I think that was more our sense of direction! Found everything we needed, the beds were comfy and the coffee machine was a lovely welcome bonus! The centre was around a 10 minute walk down the hill (20 minutes back up the other way!). Just what we needed to experience Liverpool but also be away from the hubub at night. All guests explained how much they enjoyed their stay! Would definitely recommend xx
Rebecca
10 years on Airbnb2 years ago
A really pleasant surprise! We were a group of colleagues attending the ACC for a conference and I will admit to some concern about the excellent price and the high level amenities described in the listing, experience led me to think it might be too good to be true. Not at all! Five proper, decent-sized double bedrooms; three bathrooms (2 are shower-only); comfy living room and big dining kitchen in a peaceful section of the Georgian quarter but easily walkable to town. Minor disadvantages: top-floor flat up some fairly narrow georgian back stairs and the flat also has stairs to the top floor which are quite narrow so those with mobility needs may need to be aware. The blinds on the skylights upstairs could do with being blackout (nice to have blackout curtains generally). No major complaints. Hosts are proactive and highly responsive if you need them. A really lovely flat and managed by a great team, entirely recommend.
Isti
4 years on Airbnb2 years ago
Minden Jo Volt .
Ritesh
11 years on Airbnb2 years ago
Great place to stay and very nice host
James
7 years on Airbnb2 years ago
Yeah great. Thanks to AirBnB and the team for the 15 reminders to leave a review.
Derek
3 years on Airbnb3 years ago
I recently stayed at this apartment. I have to say, it was a great experience The apartment was clean and well-maintained, making it a comfortable and enjoyable place to stay. The location was also fantastic, as it was situated in a quiet area but still close enough to all the amenities we needed. We really appreciated the peaceful surroundings after a busy day exploring the city. Overall, I highly recommend this apartment to anyone looking for a comfortable and convenient place to stay.
Junaid
4 years on Airbnb3 years ago
all and all it was a greatexperience, thank you Katy, Joe and Team
Tom
12 years on Airbnb3 years ago
Do not stay here. We had our possessions stolen. This apartment ruined my wedding day. I was getting married and returned to find someone had been inside the apartment and stolen £1000's worth of possessions including personal family items, wedding cards and cash. There was no sign of a break in, so the thief clearly had keys to access the apartment. The address is listed as Faulkner street but when you arrive you have to use the back door down a little alley to gain access from the road behind. This seemed odd at the time but we didn't think too much of it. In hindsight this was red flag no.1 Once we had reported the theft to the host they said they had CCTV in the building which they could review. However, upon investigation they confirmed the CCTV had been turned off in the week prior to our stay. They have no insurance to cover such an incident and as such I requested a refund at the very minimum. The refund was rejected. Please be careful if you decide to stay here.
Dhiviya
9 years on Airbnb3 years ago
we had the most wonderful time the 2 days we stayed at Katy,Joe&Team's house. The house was a large 5 bedroom house and for a group of 10 adults + 4kids it was just perfect. we were extremely comfortable and had all the amenities that's required for stay and cooking. Also the living room had sofa beds which was soothing and great for the group described. it was the perfect place for us with a reasonable price.
Olia
3 years on Airbnb3 years ago
We had a great time! 100% recommend
Glen
7 years on Airbnb3 years ago
Great place for a stay in Liverpool Nice and secure Plenty of space
Aurora
3 years on Airbnb3 years ago
Everything was as described and better!! Haven't stopped telling people how great our accommodation was :)
Wendy
4 years on Airbnb3 years ago
Lovely apartment exactly as described. In a nice area, within walking distance of city centre.
Dominik
11 years on Airbnb3 years ago
We stayed with a befriended family for a few days in Falkner House in January with4 adults, 4 kids. The apartment is more than we could have asked for. Clean, safe, cosy, modern and the team was great. Highly recommended, really. Thanks for the great time!
Sally
10 years on Airbnb3 years ago
A lovely location, and very spacious. whilst there is no parking there are plenty of options close by (just park) and its a nice walk into the center
Jonathan
9 years on Airbnb3 years ago
Lovely and spacious apartment in a great location. The apartment had everything we needed for our stay, was clean, quiet and very comfortable. It is a short walk to central Liverpool, and has some nice restaurants at the end of the street. Ideal for our stay.
Sean
9 years on Airbnb3 years ago
Place was good and good location. Charlie very annoying however with constant messages. A tad overzealous. Also not all beds had sheets on them.
Chris
10 years on Airbnb4 years ago
Lovely spacious appartment in a great location.
Laura
9 years on Airbnb4 years ago
Recently stayed with family and friends for a weekend away. Really good location, we walked everywhere we wanted to go to during the day and taxi at night just because of the cold! There’s only 1 permit space on the street but not too much hassle as others parked at the Park Bee car park (no more than 10min walk away) it cost us £20 Friday-Sunday, could be cheaper if you prebook possibly. Coop, coffee shop, cafe for breakfast/dinner and a beautiful pink pub all within a 5 min walk. Apartment was spacious and clean. Ideal for what we needed. All the bedrooms were a good size and comfy beds! Would definitely stay again.
John
7 years on Airbnb4 years ago
Ideal base for a stay in Liverpool. 5 bedrooms and 3 bathrooms, ample size kitchen/ diner and separate lounge.Quiet location but minutes from the city centre.
Laura
7 years on Airbnb4 years ago
Beautiful flat in a very, very good location. Perfect for our mid-week Beatles break. Walking distance to some great cafes for brunch. The team were really quick at replying to our messages and went over and above with an issue we had. Hopefully not the last time we stay in this airbnb
Rio
6 years on Airbnb4 years ago
Amazing stay. Hosts were very quick at responding to any queries. Apartment was immaculate. Perfect location in perfect walking distance to the city centre with lots of restaurants and bars surrounding.
Thomas
6 years on Airbnb4 years ago
Brilliant hosts and beautiful apartment, highly recommend.
Wendy
10 years on Airbnb4 years ago
Visited this fantastic apartment for a long weekend in Liverpool. There were 9 of us staying going to my step daughters wedding. Apartment was very clean and cosy! Great that we all had our own bedroom with TVs and plenty of storage for our clothes. The 3 bathrooms had underfloor heating and all with very good easy to use showers. Great location within easy walking distance of several excellent restaurants & pubs, and also near the city centre shops and docks. Would never love to come back.
Felicity
10 years on Airbnb4 years ago
lovely apartment in a great location a twenty minute walk to the Albert Dock, with a couple of nice restaurants at the end of the road and a Co-op also very nearby
Clíona
10 years on Airbnb4 years ago
Had a weekend stay here with family and younger children as hotel accomodation wouldn't have suited. This apartment was ideal for us. A mixture of three families with children from 1 to 17. City centre location but distant enough to ensure no noise kept us up at night. Would definitely recommend it for a city break and to enjoy the comforts of your own kitchen and sitting room. Parking was a bit of a nuisance as the nearest secure car park was a bit of a trek and the apartment does only come with one parking permit for the street outside. We parked our extra cars at Bee secure care park in town as the recommended secure car park didn't seem too safe when we got there.
Sabah
6 years on Airbnb4 years ago
Very beautiful and clean place. Enjoyed our stay
Thomas Charles
San Francisco, California4 years ago
Loved the location, eat at the corner cafe, it’s delicious
Victoria
5 years on Airbnb4 years ago
A fantastic apartment with everything thought of! Rooms were spotless and a great size - perfect for our stay. Lovely area; restaurants on the street amazing! Cannot wait to return!
Mandeep
7 years on Airbnb4 years ago
Great location, plenty of space for 15 of us.
Davison
9 years on Airbnb4 years ago
such a lovely well looked after,will come back again.
Rob
9 years on Airbnb4 years ago
The apartment is beautiful and in a great location. Communication and cleanliness are all 5 stars. Would highly recommend staying here
Naveed
5 years on Airbnb4 years ago
Lovely spacious and clean apartment with brilliant facilities. Location is also very good with free parking and great customer service.
Madeline
6 years on Airbnb4 years ago
Good location, easy stay. Lots of space and large bedrooms!
Lucy
6 years on Airbnb4 years ago
Fantastic accommodation in a central location. Apartment was very clean and tidy. Check in was very smooth as instructions were clearly stated and were easy to access. The apartment has everything you need in it to make you feel at home. Bedrooms are a good size and one of them has a kitchenette in it with its own fridge which was handy for extra storage. Good size bathrooms however it was listed there was 3.5 bathrooms and there was only 3 (not a huge deal though). If you’re going in the summer I would definitely recommend taking fans with you as the apartment was unbearably warm throughout our stay despite leaving windows open. Katy and her team were in contact throughout the whole stay and were on hand should we needed any advice or help with anything. Overall, we had a fantastic stay for a group of 7 adults and we would 100% recommend staying here.
冠成
10 years on Airbnb4 years ago
Nice location and good apartment, definitely i will choose it again when i back there.
Stephen
9 years on Airbnb4 years ago
The spacious flat was ideal as we were a large family group. It was very well presented and spotless. The location was also ideal,allowing us to stroll to restaurants, and old haunts around Hope St,. If we need this much space again we will definitely look to stay here
Chantelle
8 years on Airbnb4 years ago
Great hosts and attention to detail. Highly recommend
Jay
11 years on Airbnb4 years ago
Great location, very clean and mattresses are very comfy! Can’t complain it was great.
Steven
7 years on Airbnb5 years ago
Amazing place Amazing location
Christy
5 years on Airbnb5 years ago
beautiful accommodation, massive thanks to the team for their hospitality
Thomas
9 years on Airbnb5 years ago
Really great apartment. Loved the kitchen (apart from the very noisy heating power box sometimes) Really clean on arrival, great location, hosts were very helpful throughout our stay, comfortable beds. Underfloor heating in bathroom beside kitchen was fantastic - disappointing it was deactivated in all other bathrooms. Blinds in bedrooms upstairs need to be properly blocked out - hard to sleep in the morning due to the blinds letting a lot of light in. Automatic lights turning on around the flat in hallways annoying at night time when going to bathroom and pretty frustrating during the day too actually - really not necessary. Overall a great stay though just things to improve on to accommodate the price Thanks a lot guys
Anya
8 years on Airbnb5 years ago
Beautiful apartment in a wonderful corner of the city!
Kyle
8 years on Airbnb5 years ago
Fantastic house, sparkling clean and great communication from the host, would definitely recommend this property to anyone!
Steve
6 years on Airbnb5 years ago
3rd time we have stayed here. Very clean and spacious. Hopefully it will be available for our next visit.
Steve
6 years on Airbnb5 years ago
Great place, have already booked another week there.
Scott
11 years on Airbnb5 years ago
Fantastic apartment, 5 large double bedrooms and great kitchen and lounge. Everything you need from washing essentials to coffee pods
Kyrell
8 years on Airbnb5 years ago
Just wanted to say, my family had an awesome time staying here, lovely apartment, had everything you needed and the communication from the team was excellent. I can't recommend this apartment enough. Very happy customer.🙂
Andrea
6 years on Airbnb5 years ago
The apartment was lovely and clean and exceeded our expectations. Great communication from the Hosts and any questions we had were promptly answered. The only negative is there was no parking outside the apartment and it was £16 a day to park so with three cars ran quite expensive. Would still stay again though.
Allison
11 years on Airbnb5 years ago
Huge apartment in a beautiful street which is perfect for groups.
Ryan
9 years on Airbnb5 years ago
Booked this place for my daughters birthday. Family one night and her friends the next, and it didn't disappoint. Location is great, house is a modern touch on a classic building on the edge of the centre. Cafe /restaurant / pub down the bottom of the road so you're good for food or a drink and only 5/10 mins from the centre of it all. Highly recommend this place, would use again and I live here.
Alison
9 years on Airbnb5 years ago
The house was exactly as advertised and ideal for our stay whilst working in the area. Clean, tidy, comfortable plus absolutely amazing communication from start to finish. Highly recommend for others visiting the area.
Jon
7 years on Airbnb6 years ago
Beautiful place lovely and clean situated in a nice quiet street, the apartment was perfect for me and my colleagues would definitely recommend
Claire
7 years on Airbnb6 years ago
Great location, great hosts, lovely and spacious and good value ! Thanks for a great stay
Steinar
10 years on Airbnb6 years ago
Great place.
Ildefonso
6 years on Airbnb6 years ago
Everything I can say about this stay is wonderful, the apartment super clean, tidy, everything as new, high equipment in every room, the attention and friendliness of Katy & Joe is very good and the perfect location. A place I would definitely return to.
Deborah
7 years on Airbnb6 years ago
Great apartment and location- as advertised. Clean with comfortable beds and lovely and warm!
Sarah
12 years on Airbnb6 years ago
Great flat in the perfect location! Our hosts were very responsive to any queries that we had. Would highly recommend!
Cindy
11 years on Airbnb6 years ago
I highly recommend this place:) It is very well equipped, the bedding is comfortable (the sofa beds also in the living room), it has everything you need and it is very well located! The check-in / check-out system is very convenient and the hosts are very responsive to different requests, perfect for the group of friends of 14 that we were for 3 days in Liverpool!
Jonathan
7 years on Airbnb6 years ago
A very nice place to stay!
Sue
13 years on Airbnb6 years ago
We had a great family weekend in the lovely, well appointed light and clean flat. It is in a great situation and we all enjoyed exploring different parts of Liverpool as well as all being together in the flat. There were one or two small problems but communication with the team has been quick and efficient throughout . We are already planning to return!
Dean
9 years on Airbnb6 years ago
Lovely apartment, helpful hosts. I’d happily stay again.
Frode Olav
10 years on Airbnb6 years ago
This apartment has a great location in a nice street close to restaurants and bars. The bedrooms are large with Tv in every room. Even one bedroom with a fridge. It has all facilities one needs for a stay. We had a good time.
Stephanie
11 years on Airbnb6 years ago
Amazing location and beautiful apartment! Plenty of space for all of us and brilliant amenities in the apartment. We had a great time and would stay again! Excellent communication made for an easy, stress free check in and stay. Loved it!
Janet
6 years on Airbnb6 years ago
Lovely accommodation , great location , and good communication from the team
Claire
10 years on Airbnb6 years ago
Fabulous apartment in a fabulous location, lots of nice bars and restaurant's nearby, 10min walk to city centre, would return.
Sarah
8 years on Airbnb6 years ago
Brilliant location to walk into the city centre. Gorgeous street with lovely local bars. The apartment is modern and has everything you need. We found it a great space for the 6 of us over Christmas! Thank you x
Benedict
12 years on Airbnb6 years ago
Stylish spacious place, clean and nice, only problem it’s a walk up apartment, may not be suitable for those who has a lot of heavy luggage. Public car park is available 2 mins away. It’s a good place to go for if you travel in a big group.
Kathryn
United Kingdom6 years ago
Lovely apartment in a fabulous location. Joe, Katy and the team were excellent at replying to any queries we had before our trip. We loved receiving suggestions of things to do in the area for our stay. The apartment was very clean and we would definitely stay there again if we were in Liverpool.
Geir Johnny
11 years on Airbnb6 years ago
Nice place, and perfect for us, a family of 10 people. Easy check in, good communication and quiet area to live in.
Derwyn
7 years on Airbnb6 years ago
Great space, brilliant location, everything perfect!
Olivia
9 years on Airbnb6 years ago
Fantastic house on beautiful street. Perfect communication and a great spot in the heart of Liverpool. Would recommend to all! Thank you!
Anne
7 years on Airbnb6 years ago
Excellent apartment for our family get-together in a convenient location.
Koen
10 years on Airbnb6 years ago
Very beautiful apartment in the heart of Liverpool. Nice bedrooms en extremely clean and comfortable. 5 stars!
Tony
9 years on Airbnb6 years ago
Lovely, well appointed apartment, conveniently located. Falkner Street was described by the commentator on our open-top bus tour as "the best example of Georgian architecture in the city" The apartment has a handy Coop store a short distance away and The Quarter restaurant on the corner of Hope Street is excellent for breakfast and evening meals.
Lucy
8 years on Airbnb6 years ago
Great stay. Very stylish and clean. Really happy with everything that was provided. Great location for clubs and bars. Would definitely recommend!
Linda
7 years on Airbnb6 years ago
This is in a great place for sightseeing, not too far from the centre, quiet and with lovely restaurants very nearby. The apartment is very well equipped and modern in style. We four ladies loved our stay .
Emma
7 years on Airbnb6 years ago
Amazing house. Loved the location, the restuarant at the bottom of the street was gorgeous, if over 10 people there is a room at the back you can sit in for your food so you feel more segregated and private. Parking is expensive but the value of the house is so good that its still better priced than a hotel. The house itself is fantastic. Unfortuntaly we had a huge pram and a mother in law that is about to have a knee op and so the stairs were alot harder to navigate than i thought but that was my fault. By the looks of it they own the building and so next time we will look at booking the bottom / and or first floor flat. We will be staying there again every time we go to liverpool. Amazing hosts, gorgeous place, comfy beds. A great family friendly place, which is hard to find when the majority cater for just stag do's.
Linda
7 years on Airbnb6 years ago
The appartment is stunning. It is immaculately clean and the location is spot on. There are five double bedrooms, all of the beds are comfortable. There is a tv and hairdryer in each room which was handy and the showers were perfect. This was a gem of a find, and we will be returning without a doubt. Definately ten out of ten. Its a modern appartment with mod cons. Communication from beginning to end has been excellent. Emails and queries have be answered straight away. Hosts have been so helpful. We would all recommend this appartment everytime. Our stay has been an absolute pleasure.
Alison
7 years on Airbnb6 years ago
Great location. Spotless appartment and good communication from the host.
Christoph
8 years on Airbnb6 years ago
A really nice flat, with a good location. We enjoyed it. Tha flat was very clear.
Warwick
9 years on Airbnb6 years ago
This apartment is top class, every effort has gone into making it every bit as good as it photographs. it is situated in a lovely street in the Georgian Quarter and is convenient for town, and the university, as well as local pubs and restaurants. The apartment is immaculately clean and very well appointed, with all the facilities of a luxury hotel but with the comforts of home. Would certainly recommend and would love to stay again. Thank you
Nick
11 years on Airbnb6 years ago
Nice flat for large group.
Alison
10 years on Airbnb6 years ago
This is a great location in a beautiful city. We were 5 work colleagues and the apartment was perfect. We each had private spaces and lovely, comfortable rooms with 3 bathrooms to share. The whole process was easy and we would definitely stay again.
Lucy
11 years on Airbnb6 years ago
Good time !
Colin
7 years on Airbnb6 years ago
As advertised lovely clean and spacious apartment within easy walking distance of town. Would highly recommend if you're a large group looking for spacious accommodation with out being in each other's pockets
Paddy
7 years on Airbnb6 years ago
A brilliant, modern, comfortable, well appointed apartment; excellent for a city break with friends or family. So handy for the Georgian Quarter bars and restaurants, easy walking distance of the City Centre and not too far from the waterfront amenities either. Culture, the sights and sounds are all nearby. For football fans Anfield and Goodison Park are only 15 minutes away by taxi. Leave your car behind or find a long term car park nearby as the on street metered parking is very time limited and closely monitored.
Dennis
10 years on Airbnb6 years ago
Best of compliments. Smooth and great all over. Huge, nice, clean place in the loveliest of cities. We go again!
Clara
10 years on Airbnb6 years ago
The apartment is gorgeous and has everything expected/needed for a trip to Liverpool. The location is perfect too! A beautiful Georgian townhouse in quiet yet handy area with gorgeous bistros nearby and short walk to busier areas. Communication fantastic too with any queries being dealt with right away. Five stars 🌟 all the way.
Luis
New Jersey, United States6 years ago
Spectacular place, amazing location, plenty of space for our 2 familes, 4 adults and 4 kids. Easy check-in process and absolutely outstanding communication with the host, spot on. Will strongly recommend this place to anyone travelling to Liverpool, the area is modern and plenty of amazing restaurants, 10-15 minutes drive to Anfield or the docks. Thank you !!!
Helen
10 years on Airbnb6 years ago
Great place, brilliant hosts. Would definitely recommend.
Amar
Nairobi, Kenya6 years ago
This house was amazing! So much space that two families hardly ran into each other in the same house! Everything we needed was there and the location was superb for graduation attendance. The proximity to all the monuments and the Liverpool Uni buildings made life so easy. Excellent communication with our hosts made the stay even more seamless. Superb restaurants just a few minutes walking distance away. Same for groceries! Very very happy with our choice.
Lucy
11 years on Airbnb6 years ago
Lovely place and great location would highly recommend.
Cathrine
10 years on Airbnb6 years ago
This flat was almost as close to perfect as Airbnb's go. We were 8 adults traveling with two infants, and I have very few bad things to say about this accommodation. The place was quiet, clean, cosy, and close to the very centre of Liverpool. Checking in was extremely easy, as was checking out. Communication with Katy and Joe was quick and easy. My only complaint is that we weren't informed that we needed to purchase our own toilet paper, tea towels, dish soap and other such necessities (at least I don't think we were, haha). That would have been nice to know. Nevertheless, I'll definitely be looking for a Katy & Joe accommodation next time I'm in Liverpool.
Michael
10 years on Airbnb6 years ago
Fantastic place, ideally located and great for large groups. Described as a luxury apartment, I must say we all agreed it was exactly that :) Check-In - Easy, Comms - great, amenities - good, location - Ideal for trips into town. What more do you need? Thank you Katy, Joe & the team - we look forward to staying again when we visit next.
Rachel
9 years on Airbnb6 years ago
Great place, location & clean
Stephen
10 years on Airbnb6 years ago
A great place to stay in one of the best locations in Liverpool
Louise
9 years on Airbnb6 years ago
Great place, great location, lovely and clean....but once you’ve paid and booked that’s it, you’re on your own.
Mairi
7 years on Airbnb6 years ago
Great location , immaculately clean and good facilities.
Sue
11 years on Airbnb6 years ago
The place is fantastic. The location is one of the best with a pub, great restaurants and two cathedrals on the doorstep!!
Joe
7 years on Airbnb6 years ago
Excellent apartment, great location and everything you need is in walking distance. Highly recommend!
Dan
7 years on Airbnb6 years ago
Amazing space. Having worked away from home for a number of years I can honestly say I have never felt as comfortable in a place as I did here.
Shauna
10 years on Airbnb7 years ago
We had a great weekend staying in this apartment! Very spacious, clean, beds were very comfortable. Location was brilliant. So good for groups. Will definitely be staying again next time we’re in Liverpool.
Karen
9 years on Airbnb7 years ago
A fantastic apartment, everything beatifully clean with a real upmarket feel. Check in very easy and makes the perfect place for enjoying Liverpool. Highly recommend!
Ashleighh05
10 years on Airbnb7 years ago
The home is lovely, very spacious and modern. It is in a really nice area that is very central , only about a ten minute walk into the city centre. Despite this it is very quiet so you aren't disturbed from the sounds of the city nightlife. It is all very clean and modern. It is easy to check yourself in and out. Only thing I would say to bear in mind is there is no free parking nearby.
Alan
7 years on Airbnb7 years ago
The apartment was brillant.Close to shops,pubs ,restaurants.7/8min walk to city centre.Safe location could walk home each night.Apartment spotless.Well worth it.Will hopefully stay again this year.
Martin
7 years on Airbnb7 years ago
Great hosts and a very pleasant stay highly recommended
Jake
10 years on Airbnb7 years ago
Excellent apartment, excellent location. All round perfect experience.
Andrew
7 years on Airbnb7 years ago
Very comfortable, large rooms, comfortable beds, very clean. Check-in easy. Great place for a large group to stay.
Frank
9 years on Airbnb7 years ago
Had a great stay, perfect location and great communication with the hosts. Responded quickly when we had questions!
Silje
12 years on Airbnb7 years ago
Perfect place. Would be happy to stay again. Thanks so much.
Gayle
8 years on Airbnb7 years ago
Really good communication from the team, lovely modern house which is well equipped. The house is a great base to explore Liverpool, with a great pub and restaurant at either end of the road.
Chris
9 years on Airbnb7 years ago
Fantastic location, beautiful apartment so much space, everyone was so happy with it the kids really enjoyed themselves. Would definitely stay again really good value for money. We love Liverpool so much will definitely be back and very soon. Thank you. Chris & Victoria
Joe
New York, New York7 years ago
This space was absolutely outstanding. Check-in was a breeze. The actual space is as nice as as a modern apartment. It's located *perfectly* in Liverpool - inside one of the nicest neighborhoods, and a 5 minute walk from the bars / attractions. Would give this a 10/10 recommendation.
Please Note
Prices in your search were shown in your selected currency, but bookings are paid in the property’s local currency.
© 2024 Have You Got. All rights reserved.

