Host & Stay | The Parade View
Entire rental unit in Whitby, United Kingdom
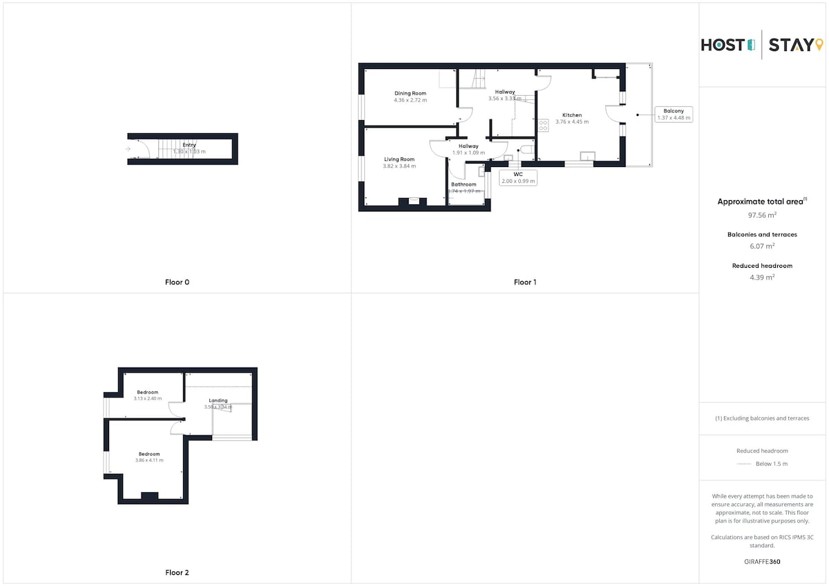
The space
The lounge has a very pleasant aspect with comfortable sofas and window seat where you can sit and look at the view, read a book and relax in front of the TV for those cosy evenings. You will also find books and ornaments to add character to the space.The maisonette has a spacious kitchen with everything you could need for self-catering and entertaining. From a granite island with chairs, brand new appliances and numerous items of cookware, you will find a well-equipped space.
The rear balcony is north facing and is the perfect place to sit in the day or morning with a cup of tea and admire the sea views in the distance as the sun rises.
A modern bathroom, featuring a bathtub with overhead shower creates space for lovely relaxing soaks after a hard day's exploring.
There are two bedrooms on the second floor: a king size and a bunk sleeping up to three guests. Plenty of storage space is available in chests of drawers in both bedrooms and a hairdryer is available too. Towels, shampoos and toilet rolls are provided.
Guest access
Guests have access to the full maisonette.The keys to The Parade View are accessed via a key safe box, and full details will be provided prior to check-in.
Free on-street parking is available nearby on a first come, first served basis.
One well-behaved dog is welcome to stay at The Parade View per reservation.
Bedrooms
Bedroom 1
1 king bed
Bedroom 2
1 bunk bed
Amenities
- Bath
- Hair dryer
- Cleaning products
- Shampoo
- Conditioner
- Body soap
- Hot water
- Wifi
- Dedicated workspace
- Kitchen
- Free on-street parking
- Pets allowed
4.79 · 19 Reviews
1 month ago
Spacious flat - five minute walk to the beach. 15 min walk to centre of Whitby. Our little dog loved the flat - including the big dog bed supplied - she liked it more than her own bed. Only downside was the toilet and bathroom being downstairs. Might be inconvenient for little children. Otherwise a great flat. The shops below are a little off putting when you first see them but there was no unwanted noise. Don’t order from the Chinese / it’s terrible!
1 month ago
2A The Parade. Stairs to first floor as you enter the front door. Shoe rack and coat hangers at the bottom of the stairs. Spotlessly clean in all rooms and ample toiletries and cleaning products. Well fitted kitchen with washer, dishwasher, hob, oven and large fridge freezer. Bed linen clean, well presented. Child and dog friendly - small dining table in the Dining Room for the little ones, toy box in bedroom. Lovely living room and dining room, plenty drawers and wardrobe space, safety gate at the bottom of the stairs and even a dog bed and bowls! Location a bit out for us as I have walking difficulties, fine for able bodied people. The only criticism I have is it is above a Costcutter, Chinese Take Away, Coral Bookmakers but a very welcome surprise once you are inside.
2 months ago
Great location. Free parking nearby. Apartment was very clean and comfortable. Dog friendly. Stairs up to the apartment are very steep and were difficult for our dog. Would worry about young children too. No hairdryer available and only 1 sachet of shampoo and body wash for 2 people for 2 nights which was disappointing as these were listed as supplied. Received an apology when reported these.
Location
Neighbourhood highlights
House Rules
- Check-in after 16:00
- Checkout before 10:00
- 5 guests maximum
- Pets allowed
- No parties or events
- No smoking
Safety & Property
- Carbon monoxide alarm installed
- Smoke alarm installed

