Host & Stay | Temple Terrace
Entire home in North Yorkshire, United Kingdom
The space
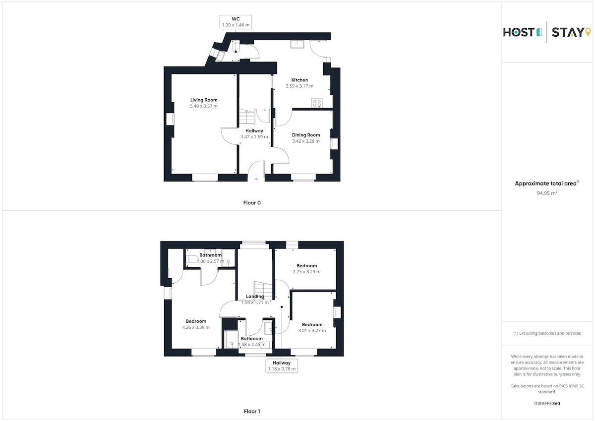
Temple Terrace is a two-storey home that accommodates five to six guests in its three bedrooms, featuring two bathrooms, a kitchen, a lounge, and a dining area.The spacious semi-open-plan layout of the dining and kitchen areas is perfect for relaxing after a day of exploring North Yorkshire. The well-equipped kitchen includes all necessary utensils and cooking equipment, while the dining table in the neighbouring dining room has a solid wood table that seats all guests via a fitted bench and chairs.
The lounge features comfortable seating, a TV with Sky, a log burner, and a coffee table for evening relaxation. A traditional large window looks out to the front, offering views out onto the peaceful street.
The three bedrooms include one king, one double, and a third room with a small double. It’s up to you whether you’d like to sleep one or two guests in the small double bedroom.
The family bathroom has a walk-up shower, wash basin, and WC. The same amenities are also offered in the master bedroom ensuite, and a separate WC is available on the ground floor.
Guest access
Guests have access to the full property.The keys to Temple Terrace are accessed via a key safe box, and full details will be provided prior to check-in.
Free on-street parking is available outside the property. Additional public parking is available around Richmond.
Bedrooms
Bedroom 1
1 king bed
Bedroom 2
1 double bed
Bedroom 3
1 double bed
Amenities
- Hairdryer
- Cleaning products
- Shampoo
- Conditioner
- Body soap
- Hot water
- Shower gel
- TV
- Wifi
- Dedicated workspace
- Kitchen
- Free on-street parking
4.92 · 13 Reviews
2 months ago
Had a lovely short break, staying at Temple Terrace. Richmond is a beautiful town, with plenty to see and do, both locally and in the area. The house is very tastefully decorated and furnished. Had a couple of small issues which we mentioned to the management company - I'm sure they will be on the case :)
7 months ago
A lovely house, very clean and tidy and well presented. A short 5 min walk to the town centre. There is free parking opposite the house but only a few spaces so these are usually occupied. But a large pay and display car park only a couple of minutes walk, or two hour limit parking virtually opposite.
8 months ago
Spacious spot for exploring Richmond and surrounds. We were lucky to nab some of the on street parking. Beds were really comfy and showers modern and clean. Worth knowing that there are no games or books in the house... So bring your own. Kitchen is well equipped and plenty of seating for all in the dining room and lounge
Location
Neighbourhood highlights
House Rules
- Check-in after 16:00
- Checkout before 10:00
- 5 guests maximum
- No pets
- No parties or events
- No smoking
Safety & Property
- Carbon monoxide alarm installed
- Smoke alarm installed

