Host & Stay | Candyfloss Cottage
Entire home in Whitby, United Kingdom
The space
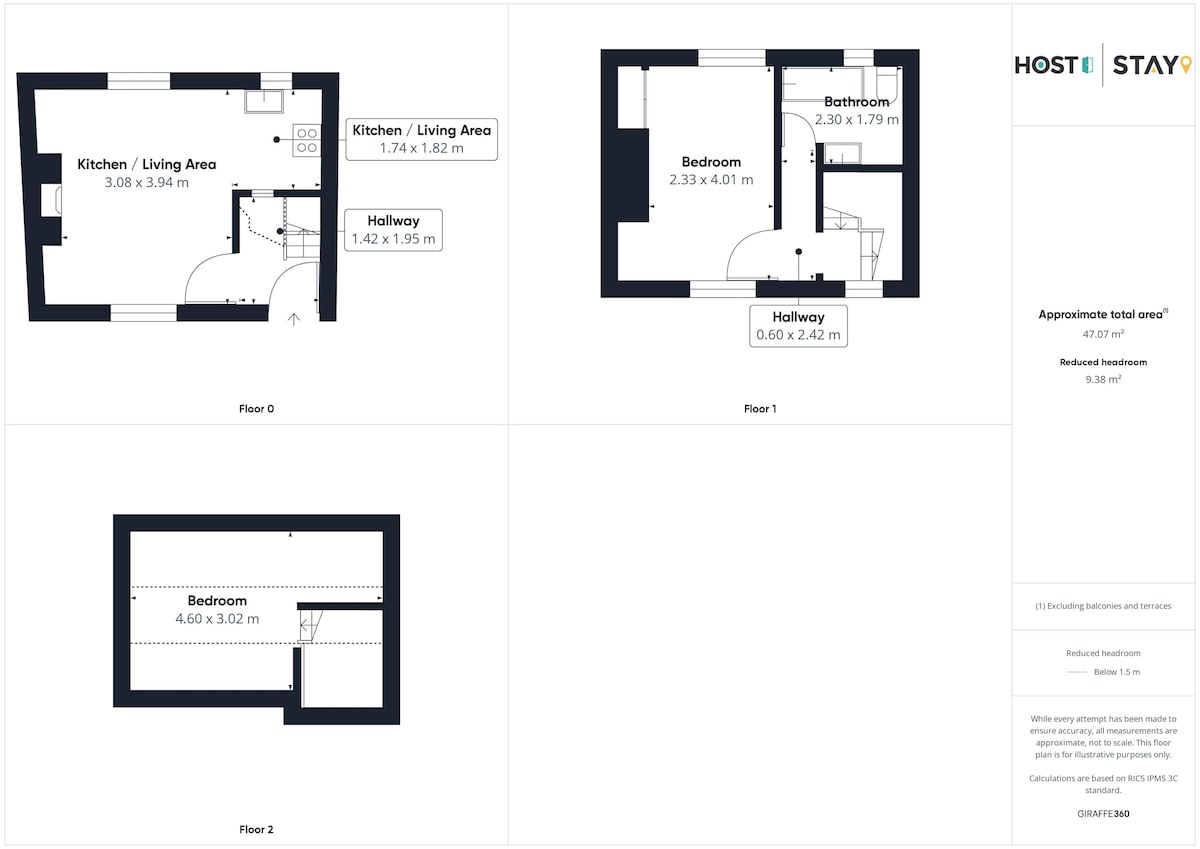
After entering the property via the bespoke artisan made gate, you’ll find the open-plan living area through the front door which combines comfort and quirkiness, with plush leather sofas, flat screen TV, and exposed timber beams.The kitchen area shares the living space so it is perfect for cooking and socialising with loved ones. The fully equipped kitchen has everything you need, including a modern interior and amenities along with a pull-out dining table for four.
Relax in two cosy bedrooms – one twin on the first floor and a double on the second floor. There is also the added bonus of a TV in the master top floor bedroom.
Enjoy a modern bathroom at Candyfloss Cottage with a jacuzzi bath and overhead shower, along with a wash basin and WC. This space offers you room to have a refreshing start or a relaxing soak after a long day.
Guest access
Guests have access to the full property.The keys to Candyfloss Cottage are accessed via a key safe box, and full details will be provided prior to check-in.
We provide a parking scratch card for your stay which gives you free parking in the W zones.
A maximum of two well-behaved dogs are welcome to stay at Candyfloss Cottage per reservation.
Bedrooms
Bedroom 1
1 double bed
Bedroom 2
2 single beds
Amenities
- Bath
- Hair dryer
- Cleaning products
- Shampoo
- Conditioner
- Body soap
- Hot water
- Wifi
- Dedicated workspace
- Kitchen
- Free on-street parking
- Pets allowed
4.54 · 24 Reviews
2 months ago
We had an absolutely lovely time at Candyfloss cottage. Such a beautiful little fisherman’s cottage which is filled with lots of curiosities and unique decor. It is a little tricky to find, but we loved how it was hidden away down a quaint little back alley. You are literally 30 seconds walk from the harbour and all of the amenities and 1 minute away from the beach. The house has a steep winding staircase as it’s an old cottage, so someone of limited mobility would struggle. However, I liked them as it helped me to achieve my daily step count. The kitchen had everything that we needed and it even has a washing machine which is helpful when you are on a longer stay. Charlie from Host and Stay was super helpful and responsive. We will definitely be back.
3 months ago
So disappointed, the house was dirty. There is no mention/ images of access to the building itself regarding elderly or disabled, my Nan is 84 and listing should state access to the property is not by road and involves steps. Asked about early check in, was told strictly 4 which is understandable if on arrival was clean but it wasn’t, no offer for us to drop bags off and had to park miles away. The place smelt fusty and was covered in dust, cobwebs, dead and alive spiders, toothpaste in bathroom, toilet was dirty, mould in the shower and on the show unit itself. Lovely feature to have a jacuzzi bath but it wasn’t clean enough to want to use it. The sink wouldn’t drain and when we took the plug out to see the hair and gunk was just disgusting, Someone before us had ever written the word dirty in the glass shade. No washing up liquid and 1 toilet roll between 4 for 3 days is poor. Everywhere I looked was just dirt and it honestly ruined the trip, we travelled a total of 6 hours.
3 months ago
The cottage was delightful, clean and tidy, and only a one minute from the main street. Also just a few minutes walk to the beach. The facilities suited us. The only problem we had was finding it. It's within a multitude of back alleys and lanes with poor signage. Using one of the car parks is essential if you don't have a permit. Overall, we enjoyed our stay
Location
Neighbourhood highlights
House Rules
- Check-in after 16:00
- Checkout before 10:00
- 4 guests maximum
- Pets allowed
- No parties or events
- No smoking
Safety & Property
- Carbon monoxide alarm installed
- Smoke alarm installed
Property Manager Terms
- For a full refund of the nightly rate, the guest must cancel within 48 hours of booking and at least 14 full days prior to listing’s local check-in time (shown in the confirmation email).
- For a 50% refund of the nightly rate, the guest must cancel 7 full days before the listing's local check-in time (shown in the confirmation email), otherwise no refund will be given. If only 50% of the reservation has been paid, no refund will be issued and the remaining 50% will simply not be charged.
- If the guest cancels less than 7 days in advance or decides to leave early after check-in, the nights not spent are not refunded.
- Cleaning fees are always refunded if the reservation is cancelled before check-in.
- Accommodation fees (the total nightly rate you’re charged) are refundable in certain circumstances as outlined below.
- A reservation is officially cancelled when the guest clicks the cancellation button on the cancellation confirmation page, which they can find in Dashboard > Your Trips > Change or Cancel.

